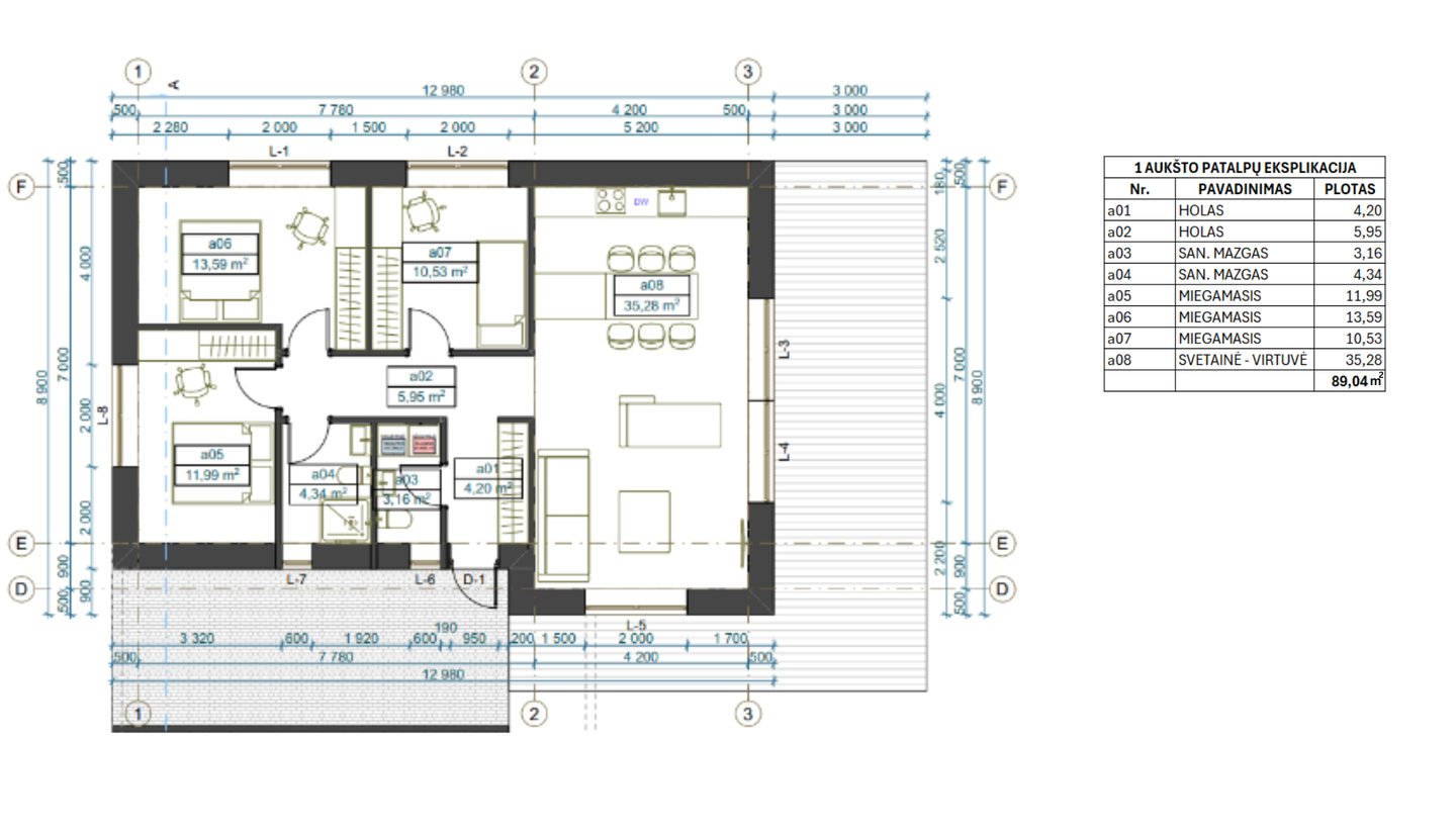
89 m² A++ energetinės klasės mūrinis namas, kuriame kiekvienas metras apgalvotas. Šviesi bendra erdvė su svetaine ir virtuve kuria atvirumo jausmą, trys atskiri miegamieji suteikia privatumą, o du sanitariniai mazgai ir funkcionalus planas leidžia patogiai gyventi tiek porai, tiek augančiai šeimai.